Villa nel frutteto
0086 TARTOI

Categoria: Residenziale

Dimensione costruita: 270 mq

Anno: 2022

Luogo: Toirano (SV)

Cliente: Privato

Incarico/Fase: Progetto e Direzione Lavori - IN CORSO DI COSTRUZIONE

 

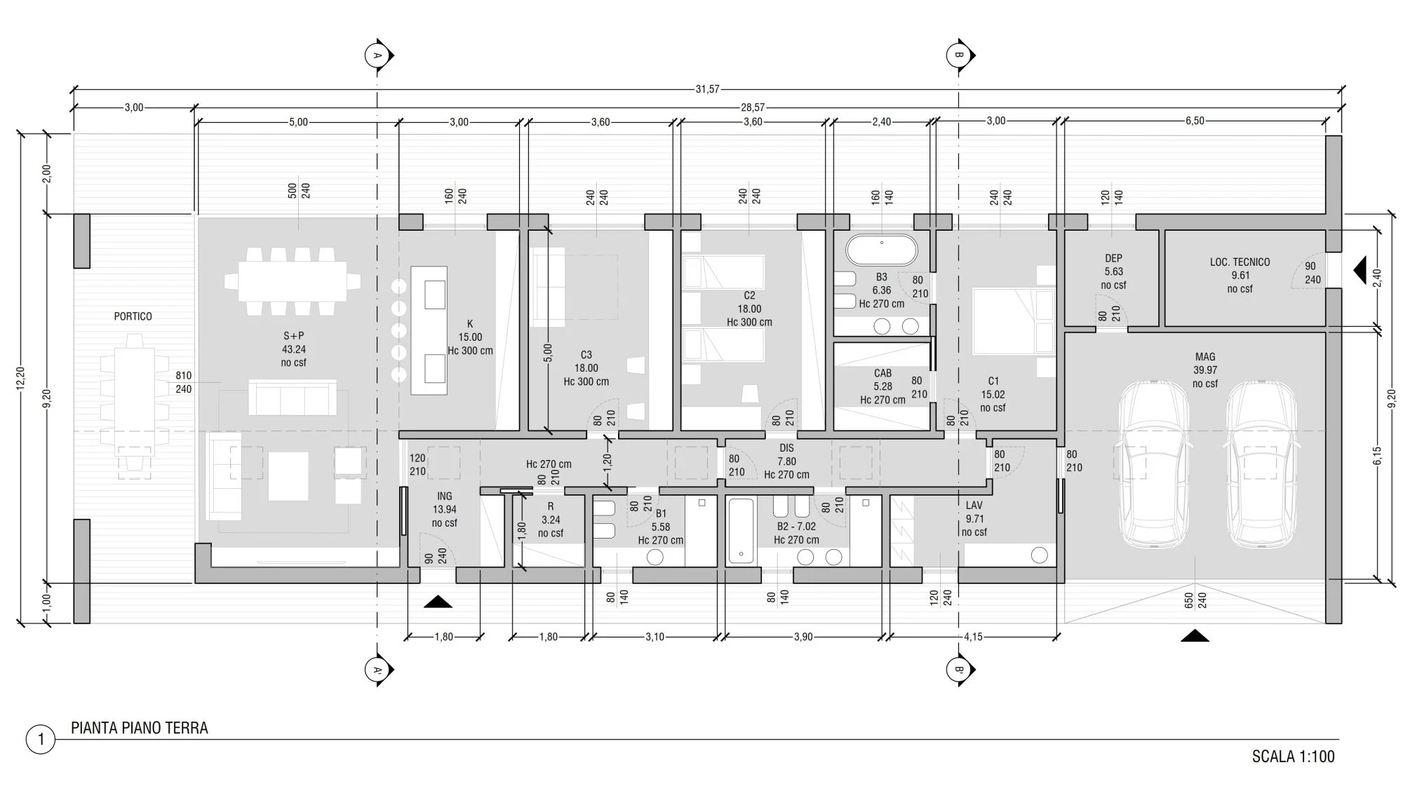
L’intervento prevede la demolizione e ricostruzione con incremento volumetrico di una serie di edifici incongrui a destinazione agricola, oggi in disuso, all’interno di un’area oggetto di riqualificazione urbanistica. L’edificio in progetto è pensato su un unico piano fuori terra e avrà destinazione residenziale e agricola.L’intervento prevede la demolizione e ricostruzione con incremento volumetrico di una serie di edifici incongrui a destinazione agricola, oggi in disuso, all’interno di un’area oggetto di riqualificazione urbanistica. L’edificio in progetto è pensato su un unico piano fuori terra e avrà destinazione residenziale e agricola.

Il nuovo volume si adagia in senso orizzontale rispetto al terreno, seguendo l’asse longitudinale del lotto, inserendosi armonicamente nel contesto senza stravolgere l’attuale conformazione del terreno e del costruito circostante. Tale orientamento è inoltre ottimale in quanto l’edificio si dispone in senso parallelo lungo l’asse Est-Ovest, con il fronte lungo che affaccia direttamente a Sud, sviluppandosi su un solo piano fuori terra con tetto a due falde leggermente asimmetriche.

 
 

I materiali che saranno utilizzati per i rivestimenti sono stato scelti tra quelli del repertorio della tradizione locale ma declinati in un disegno architettonico contemporaneo: la copertura a due falde inclinate asimmetriche con rivestimento in tegole marsigliesi, la facciata rivestita in intonaco a base di calce e finitura in arenino, gli infissi in legno verniciato mentre tutti gli spazi esterni saranno lastricati con rivestimenti in pietra a lastre o ciottoli. Lungo il porticato sono presenti dei pannelli frangisole in legno per schermare il portico dall’irraggiamento solare.

 
 
 
 
 

Considerata la difficile logistica di cantiere, si è scelto di optare per una costruzione a secco (la struttura in elevazione e la copertura sono pertanto state progettate e realizzate in legno lamellare).